Alüminyum Profil

Alüminyum Profil Çözümlerimiz

Modern ekstrüzyon hatlarımızda üretilen profil sistemlerimizi aşağıdan inceleyebilirsiniz. Tüm veriler teknik tablo formatında sunulmuştur.

C60 Profiller

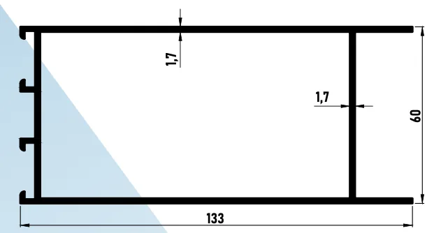
C60 Profiller - KASA
KASA
3000 ‑ 1,010 kg/m
C60 Profiller - KASA
KASA
3001 ‑ 1,345 kg/m
C60 Profiller - KASA
KASA
3002 ‑ 0,765 kg/m
C60 Profiller - OV AL KÖŞE
OV AL KÖŞE
3004 ‑ 1,020 kg/m
C60 Profiller - KANAT
KANAT
3005 ‑ 1,060 kg/m
C60 Profiller - KANAT ADAPTÖR
KANAT ADAPTÖR
3003 ‑ 0,410 kg/m
C60 Profiller - ÇARPMA KAPI ADAPTÖRÜ
ÇARPMA KAPI ADAPTÖRÜ
3007 ‑ 0,325 kg/m
C60 Profiller - ADAPTÖR
ADAPTÖR
3010 ‑ 0,210 kg/m
C60 Profiller - TİJ
TİJ
3008 ‑ 0,115 kg/m
C60 Profiller - TİJ
TİJ
3009 ‑ 0,225 kg/m
C60 Profiller - CAM ÇITALARI
CAM ÇITALARI
3011 ‑ 0,290 kg/m
C60 Profiller - CAM ÇITALARI
CAM ÇITALARI
3012 ‑ 0,255 kg/m
C60 Profiller - CAM ÇITALARI
CAM ÇITALARI
3013 ‑ 0,215 kg/m
C60 Profiller - CAM ÇITALARI
CAM ÇITALARI
3014 ‑ 0,240 kg/m
C60 Profiller - ÇARPMA KAPI ADAPTÖRLERİ
ÇARPMA KAPI ADAPTÖRLERİ
3016 ‑ 0,430 kg/m
C60 Profiller - ÇARPMA KAPI ADAPTÖRLERİ
ÇARPMA KAPI ADAPTÖRLERİ
3017 ‑ 0,505 kg/m
C60 Profiller - KANAT ADAPTÖRLERİ
KANAT ADAPTÖRLERİ
3018 ‑ 0,840 kg/m
C60 Profiller - KANAT ADAPTÖRLERİ
KANAT ADAPTÖRLERİ
3019 ‑ 0,550 kg/m
C60 Profiller - KASA
KASA
3020 ‑ 1,285 kg/m
C60 Profiller - KASA
KASA
3021 ‑ 1,800 kg/m
Aldoks Profiller - TAKVİYELİ KASA
TAKVİYELİ KASA
3022 ‑ 2,100 kg/m
C60 Profiller - KANAT
KANAT
3023 ‑ 1,440 kg/m
C60 Profiller - KÖŞE
KÖŞE
3024 ‑ 1,180 kg/m
C60 Profiller - ETEK
ETEK
3006 ‑ 1,820 kg/m
C60 Profiller - ETEK
ETEK
3015 ‑ 2,045 kg/m